Aile yaşamını modern, konforlu ve işlevsel bir hale getirmek için tasarlanan Maker Family House, özel tasarımı ve güçlü yapısıyla ön plana çıkan bir prefabrik konut seçeneğidir
Proje Bilgileri
Özelleştirebilir
30 Kasım 2023, 16:02
Proje Kategori
Prefabrik yapılar
Proje Adı
Maker Family House
Proje Açıklaması
Maker Family House: Aileler İçin Tasarlanmış Modern ve Konforlu Bir Yaşam Alanı
Özellikler:
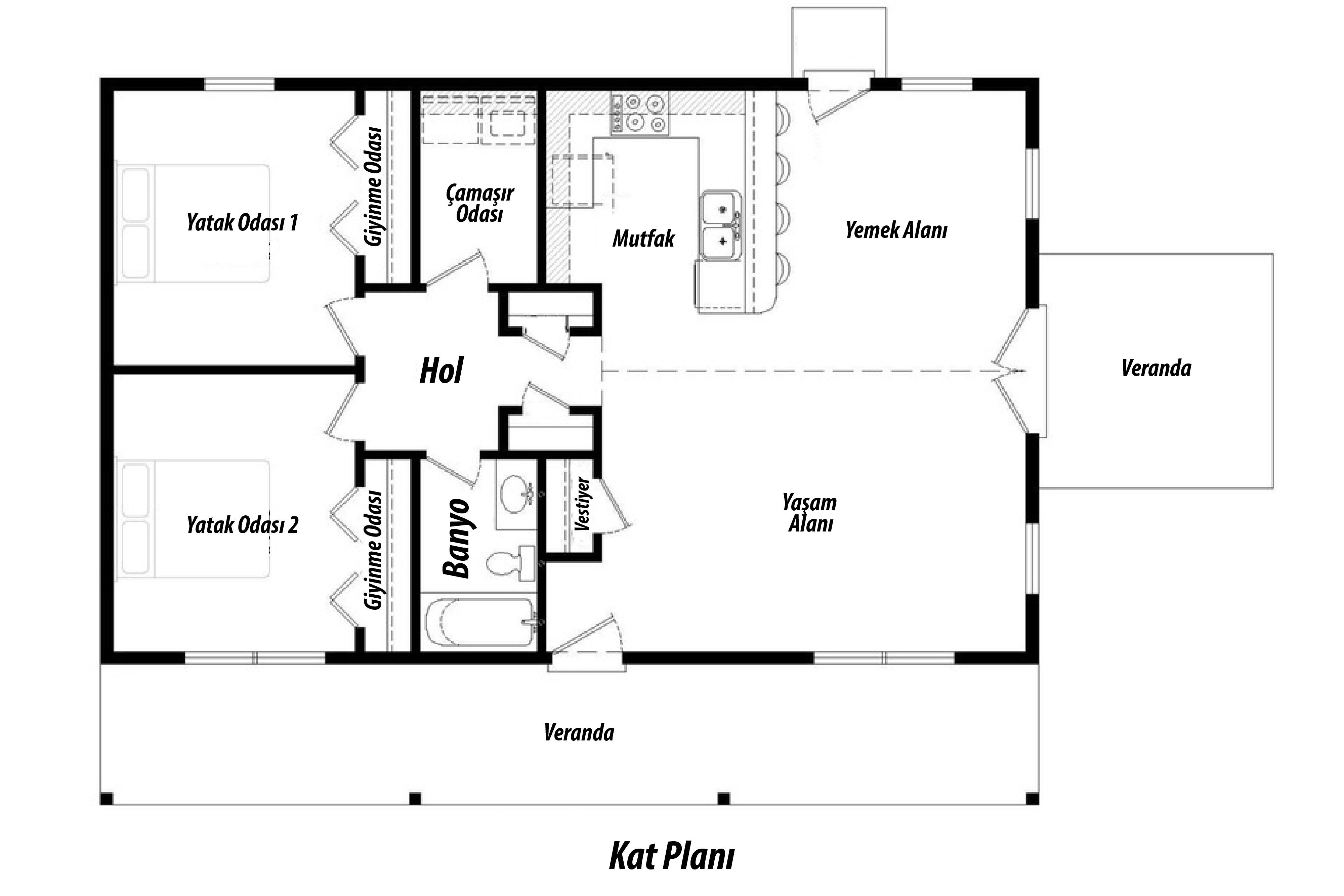
Aile Odaklı Tasarım: Maker Family House, geniş iç mekanları ve aile yaşamına uygun düzenlemeleriyle aileleri düşünerek tasarlanmıştır. Her yaşa ve ihtiyaca uygun bir yaşam alanı sunar.
Modüler ve Esnek Planlar: Aile ihtiyaçlarına uygun olarak modüler tasarımı sayesinde iç mekanları dilediğiniz gibi özelleştirebilirsiniz. Ayrıca, geniş ve kullanışlı alanlar, aile etkinlikleri ve bir araya gelmeleri destekler.
Enerji Verimliliği ve Sürdürülebilirlik: Maker Family House, enerji verimliliği sağlayan özel tasarımı ve çevre dostu malzemeleriyle aile bütçenizi ve çevreyi düşünür.
Akıllı Ev Teknolojisi: Ev içindeki aydınlatma, ısıtma, güvenlik ve diğer sistemlere akıllı bir şekilde hakim olmanızı sağlayan teknolojik özelliklerle donatılmıştır. Akıllı ev teknolojisi, aile yaşamını daha konforlu hale getirir.
Hızlı Kurulum ve Güvenilirlik: Prefabrik yapısı sayesinde Maker Family House, hızlı kurulum süreçleriyle ailelerin daha kısa sürede ev sahibi olmalarını sağlar. Güvenilir malzemeler ve kalite kontrolü ile uzun ömürlü bir konut deneyimi sunar.
Çocuk Dostu Tasarım: Maker Family House, çocukların güvenliği ve mutluluğu düşünülerek tasarlanmıştır. Oyun odaları, geniş bahçe alanları ve çocuk dostu detaylarla aile yaşamınızı renklendirir.
Maker Family House, aile yaşamını daha keyifli ve pratik hale getirmek için tasarlanmış modern bir konut seçeneğidir. Hayalinizdeki aile evine sahip olmak için hemen bizimle iletişime geçin!